Opdag dine muligheder hos living4all
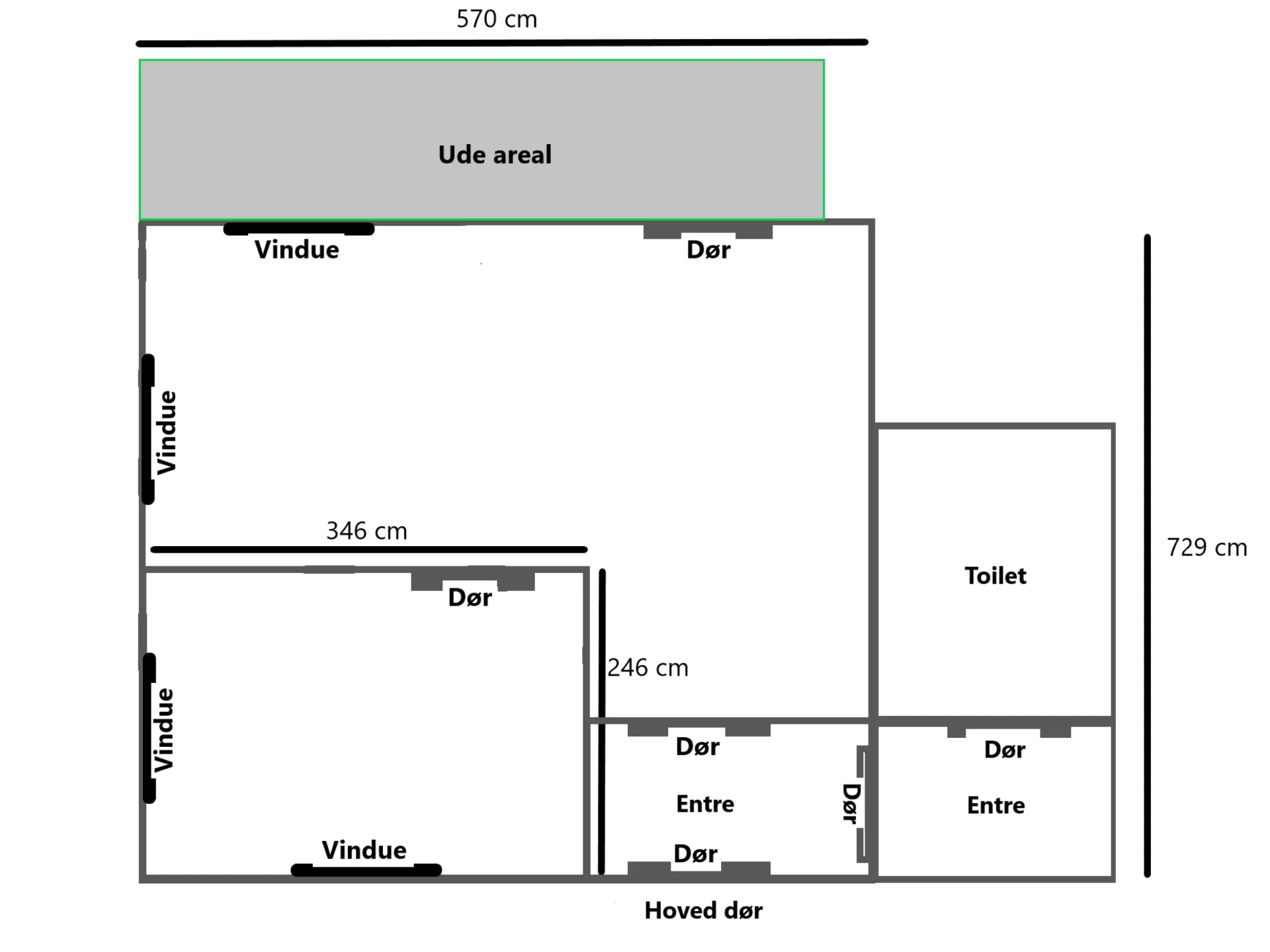
Her ser du hvilke muligheder vores erhvervslokaler byder på i m2. Her får du et visuelt indblik i de mange muligheder, vores lokaler rummer for din virksomhed. Vi er dedikerede til at give dig plads til vækst og succes, strategisk placeret mellem Roskilde og Køge.
Se, hvordan din fremtidige arbejdsplads kan se ud.

Gode lokaler til det lille erhverv.
Vores erhvervslokaler i Havdrup er velegnet til flere forskellige ting. Her får du en fornemmelse for, hvordan et lyst og indbydende miljø kan understøtte alt fra kontorarbejde og konsulentvirksomhed til opmagasinering eller endda kreative udfoldelser som yoga og massage.
Mulighederne er mange – dog ikke til butikssalg.

Strategisk placering tæt på alt
Se billeder af vores attraktive beliggenhed i industriområdet i Havdrup, kun 10 minutter fra Solrød og tæt på både Roskilde og Køge. Lokalerne ligger på Industrivænget, med nem adgang til tog, indkøb og motorvejsforbindelse. Du får egen indgang i udlejers bolig og mulighed for meget begrænset parkering i indkørslen.

Dit nye erhvervsrum venter
Forestil dig din virksomhed i disse lyse og funktionelle rammer. Hver detalje er vigtig for at du kan se potentialet og føle dig hjemme i dit nye erhvervslokale.
Opret din egen hjemmeside med Webador